Crescent Shapes And Bright Colors Feature In This Architect’s Home
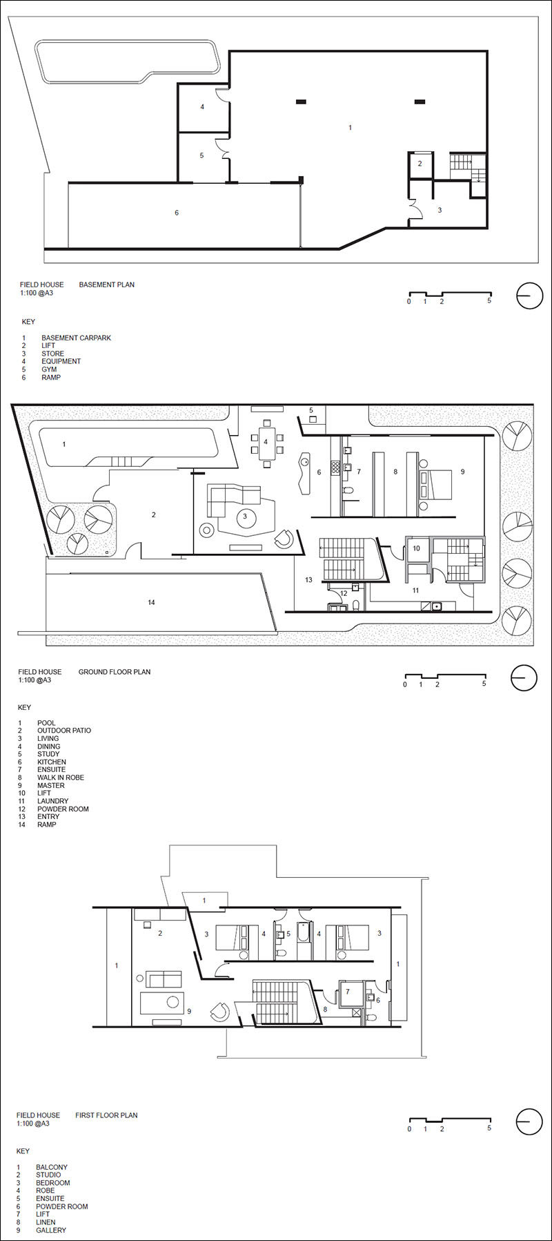
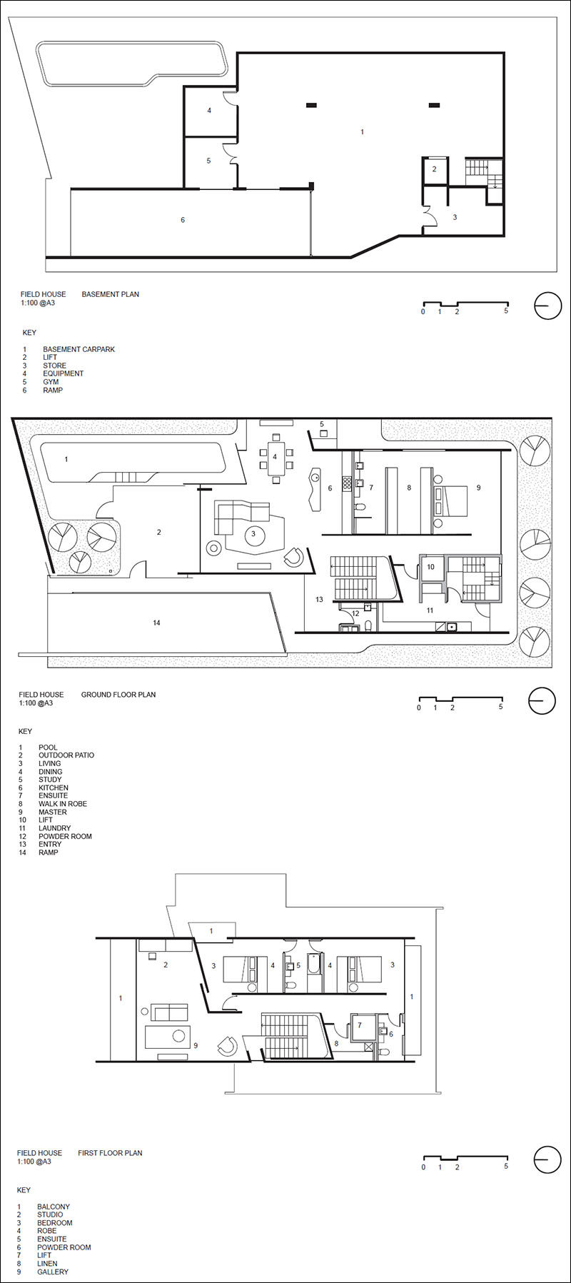
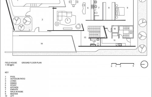
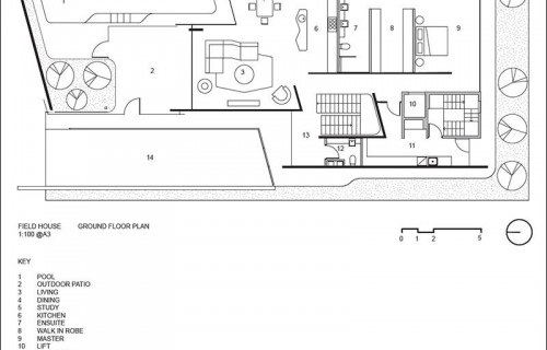
FULL SPECS & FEATURES

If you need more information, pleasefeel free to contact us.
Contact: Mr. Vino Zhang
Cell: +86-135 6063 2003 (Whatsapp and Wechat No.)
Email: vino@jncnhomes.com

Most Recent Entries