


Total Heated Area:2,832 sq. ft.
1st Floor:2,832 sq. ft.
Storage:59 sq. ft.
Porch, Rear:340 sq. ft.
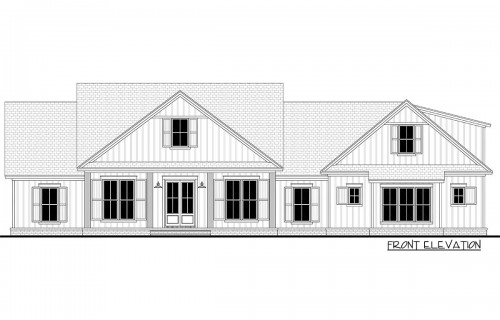
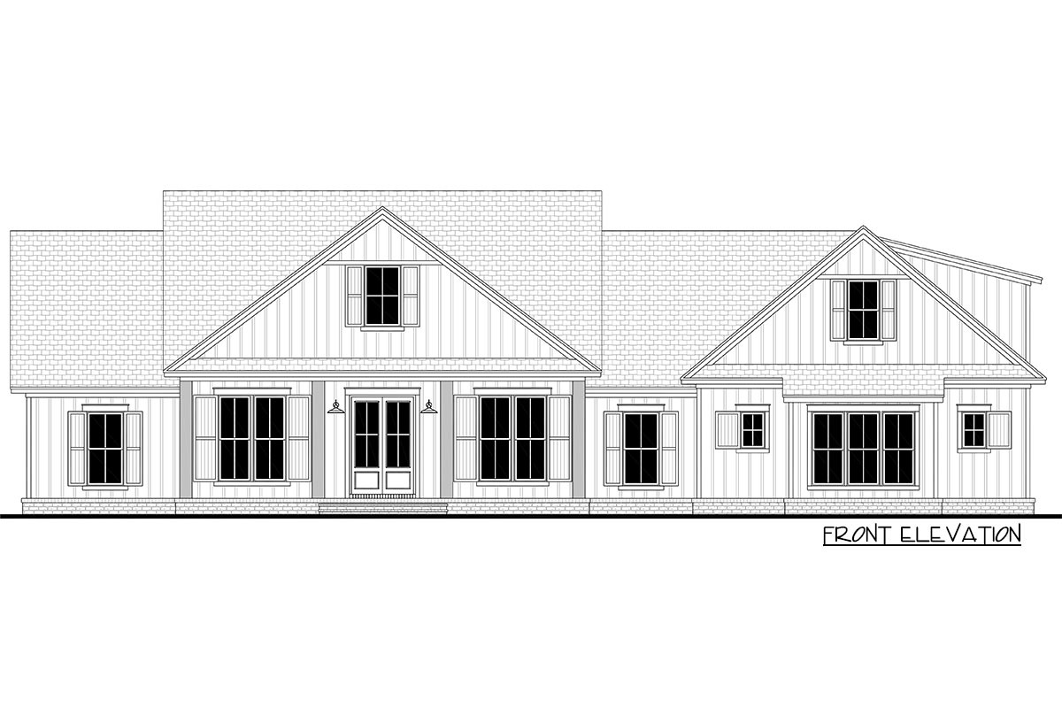
Porch, Front:256 sq. ft.
Bonus:439 sq. ft.
Bedrooms:4 or 5
Full Bathrooms:3 or 4
Standard Foundations:Crawl, Slab
Optional Foundations:Basement, Walkout
Standard Type(s):2x4
Optional Type(s):2x6
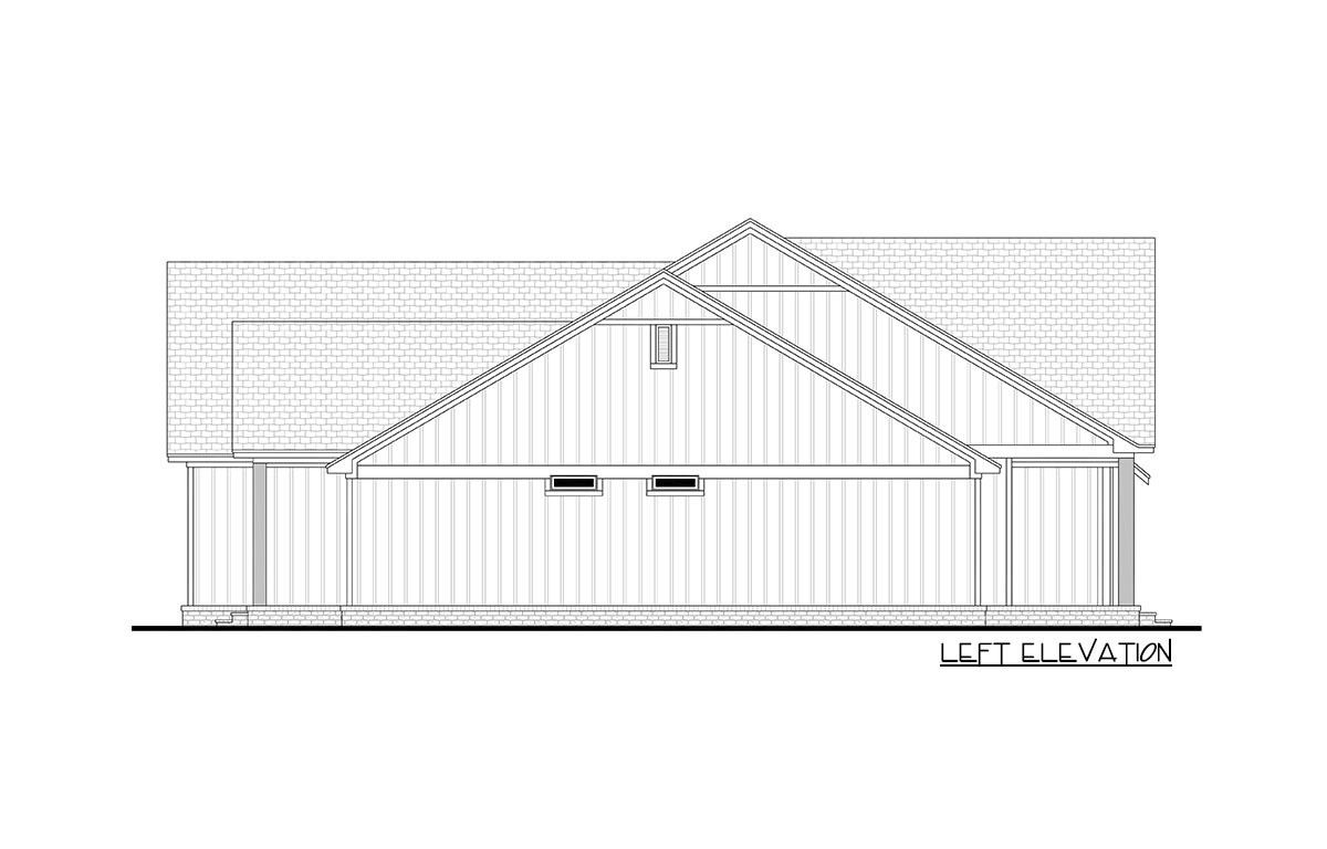
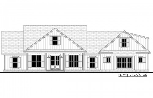
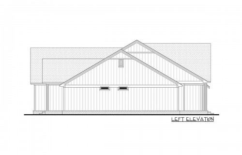
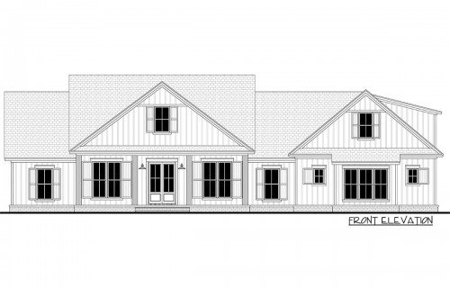
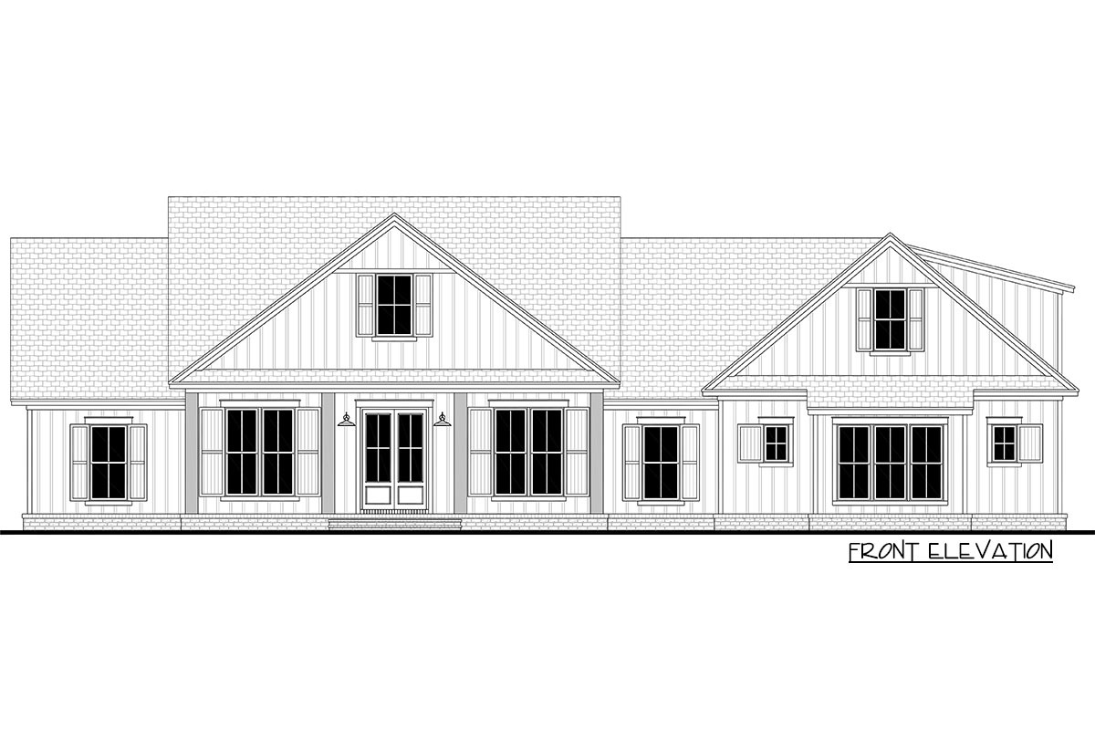
Width:80' 10"
Depth:60' 6"
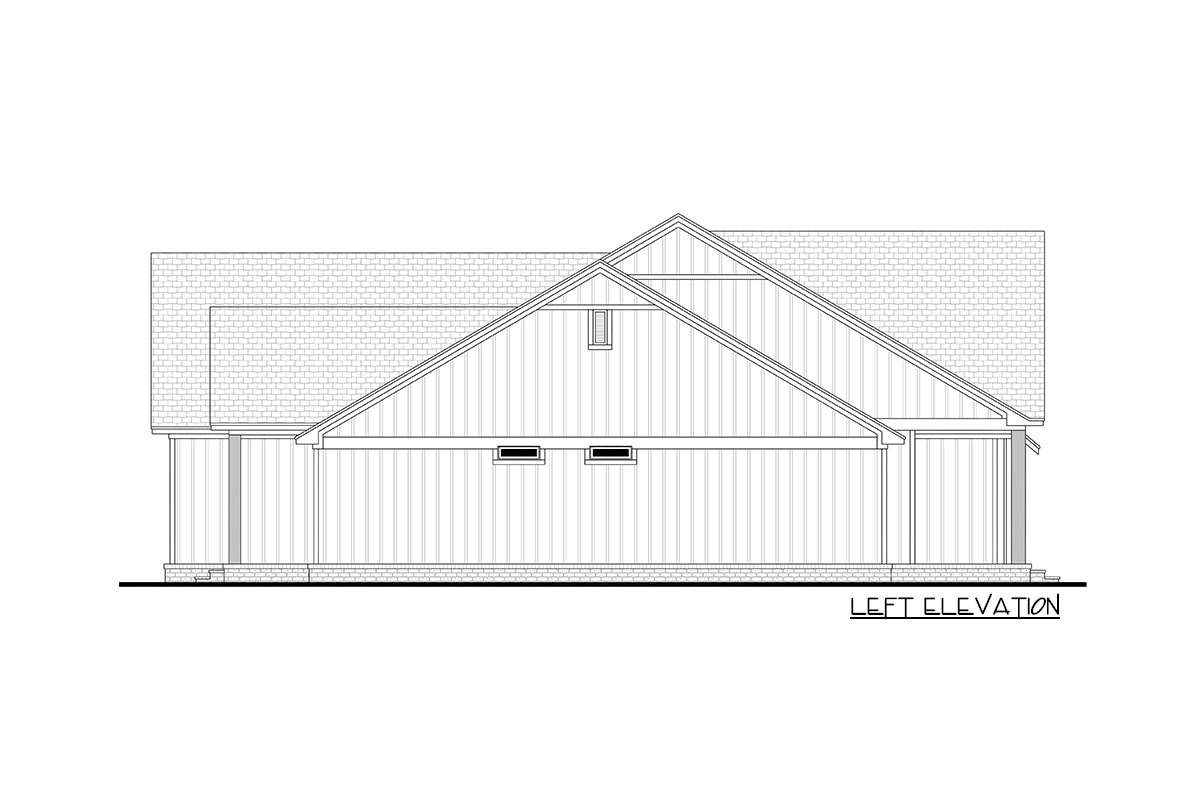
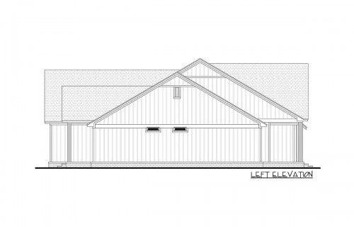
Max Ridge Height:25' 0"
Type:Attached
Area:768 sq. ft.
Count:2 cars
Entry Location:Side
Floor / Height:Lower Level / 9' 4"First Floor / 9' 0"Second Floor / 9' 0"
| Room | Type | Height |
|---|---|---|
| Great Room | Vaulted | 15' 8" |
Primary Pitch:7 On 12
Secondary Pitch:9 On 12
Framing Type:Stick
If you need more information, pleasefeel free to contact us.
Contact: Mr. Vino Zhang
Cell: +86-135 6063 2003 (Whatsapp and Wechat No.)
Email: vino@jncnhomes.com