

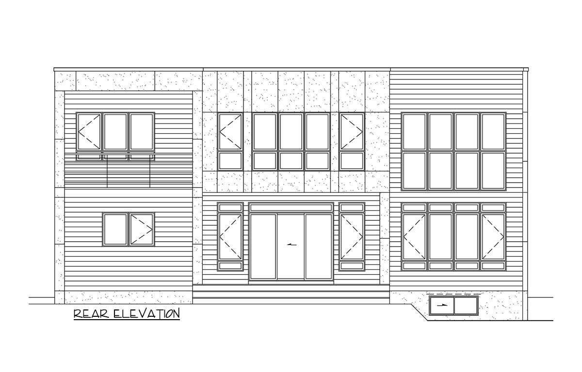
Total Heated Area:2,216 sq. ft.
1st Floor:1,070 sq. ft.
2nd Floor:1,146 sq. ft.
Bedrooms:3
Full Bathrooms:2
Half Bathrooms:1
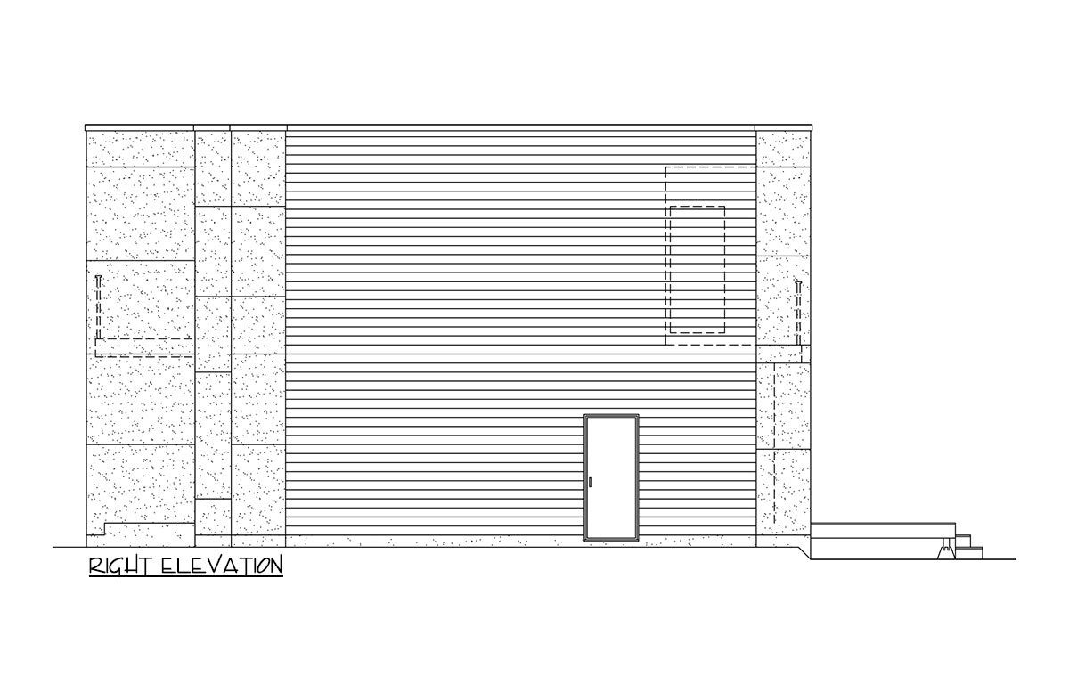
Standard Foundations:Basement
Standard Type(s):2x6
Width:48' 0"
Depth:34' 0"
Max Ridge Height:25' 8"
Type:Attached
Area:290 sq. ft.
Count:1 cars
Entry Location:Front
Floor / Height:First Floor / 9' 0"Second Floor / 8' 0"
| Room | Type | Height |
|---|---|---|
| Great Room | 18' 0" |
Framing Type:Truss
If you need more information, pleasefeel free to contact us.
Contact: Mr. Vino Zhang
Cell: +86-135 6063 2003 (Whatsapp and Wechat No.)
Email: vino@jncnhomes.com