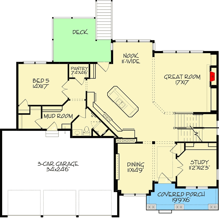
Main Level

2nd Floor

Optional Finished Lower Level

Total Heated Area:3,713 sq. ft.
1st Floor:1,683 sq. ft.
2nd Floor:2,060 sq. ft.
Porch, Front:118 sq. ft.
Optional Lower Level:1,464 sq. ft.
Basement Unfinished:157 sq. ft.
Bedrooms:5 or 6
Full Bathrooms:4 or 5
Standard Foundations:Basement, Walkout
Standard Type(s):2x6
Width:61' 6"
Depth:46' 0"
Max Ridge Height:35' 0"
Type:Attached
Area:769 sq. ft.
Count:3 cars
Entry Location:Front
Primary Pitch:12 On 12
Secondary Pitch:16 On 12
Framing Type:Truss
If you need more information, pleasefeel free to contact us.
Contact: Mr. Vino Zhang
Cell: +86-135 6063 2003 (Whatsapp and Wechat No.)
Email: vino@jncnhomes.com