Main Level

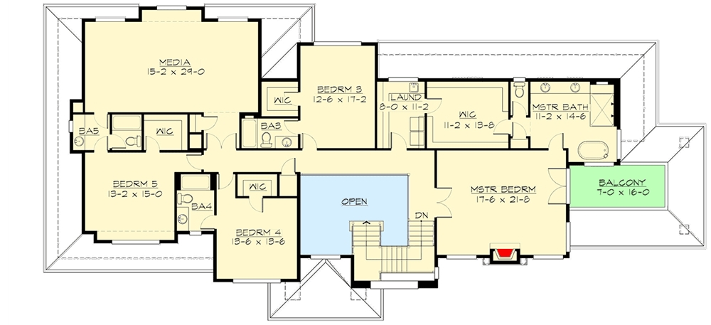
2nd Floor

Total Heated Area:5,419 sq. ft.
1st Floor:2,690 sq. ft.
2nd Floor:2,729 sq. ft.
Bedrooms:5
Full Bathrooms:5
Half Bathrooms:1
Standard Foundations:Crawl
Standard Type(s):2x6
Width:108' 0"
Depth:50' 0"
Max Ridge Height:29' 9"
Type:Attached
Area:835 sq. ft.
Count:3 cars
Entry Location:Front
Floor / Height:First Floor / 10' 0"Second Floor / 9' 0"
Primary Pitch:4 On 12
Framing Type:Stick And Truss
If you need more information, pleasefeel free to contact us.
Contact: Mr. Vino Zhang
Cell: +86-135 6063 2003 (Whatsapp and Wechat No.)
Email: vino@jncnhomes.com