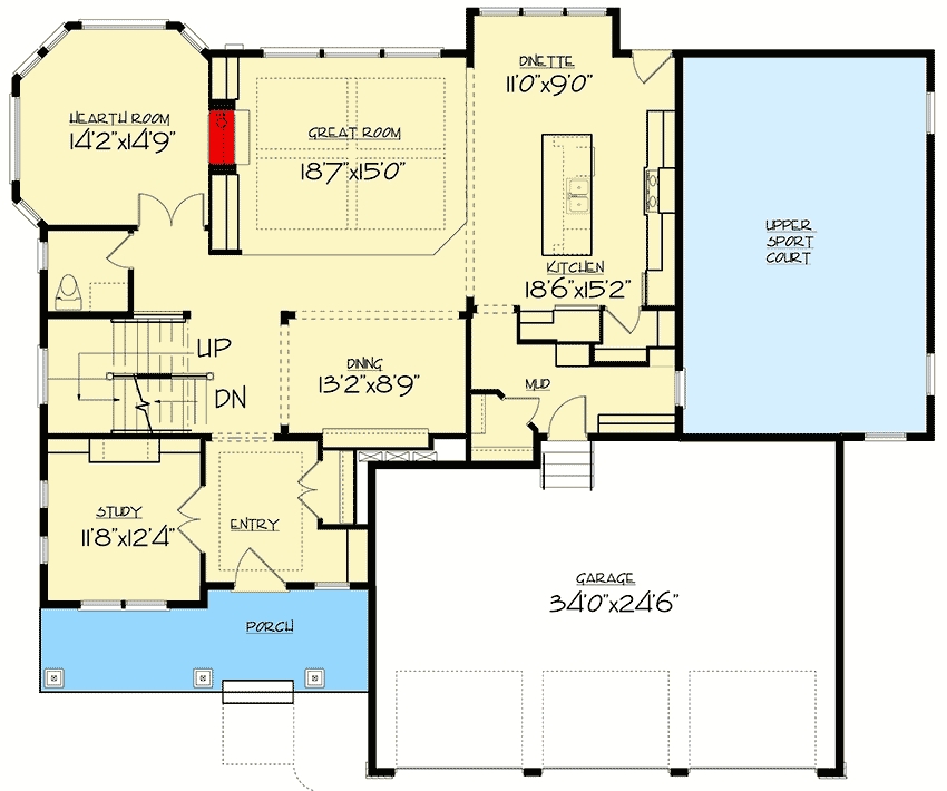
Main Level

2nd Floor

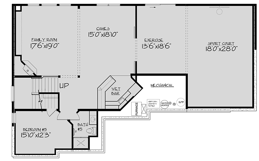
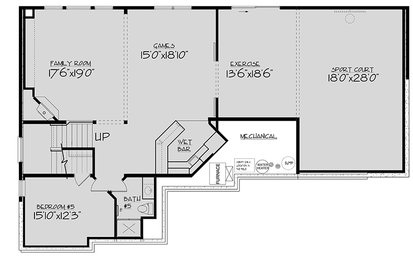
Lower Level

Total Heated Area:3,395 sq. ft.
1st Floor:1,658 sq. ft.
2nd Floor:1,737 sq. ft.
Sports Court:518 sq. ft.
Bonus:378 sq. ft.
Optional Lower Level:1,403 sq. ft.
Basement Unfinished:186 sq. ft.
Bedrooms:4 or 5
Full Bathrooms:4 or 5
Half Bathrooms:1
Standard Foundations:Walkout
Standard Type(s):2x6
Width:64' 0"
Depth:52' 0"
Type:Attached
Area:784 sq. ft.
Count:3 cars
Entry Location:Front
Floor / Height:Lower Level / 8' 0"First Floor / 9' 0"Second Floor / 8' 0"
Framing Type:Truss
If you need more information, pleasefeel free to contact us.
Contact: Mr. Vino Zhang
Cell: +86-135 6063 2003 (Whatsapp and Wechat No.)
Email: vino@jncnhomes.com