Luxury houses - 73373hs
Floor Plan

Main Level

2nd Floor

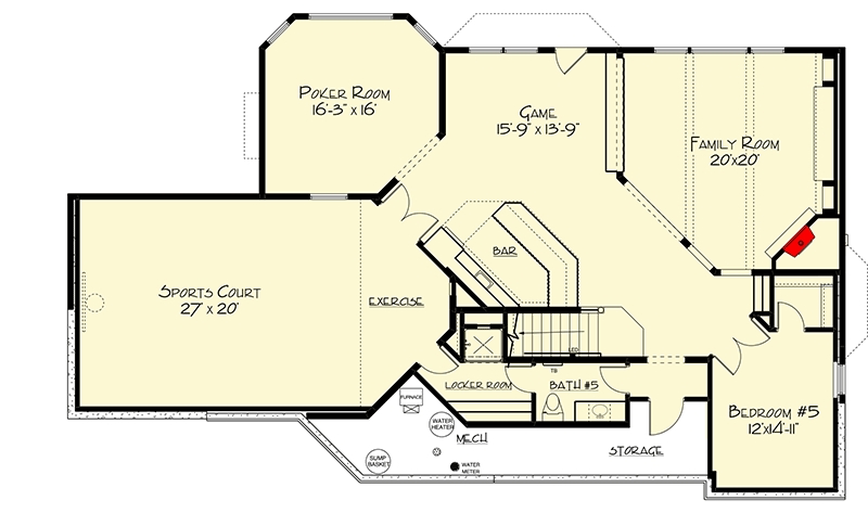
Lower Level


Plan details

Square Footage Breakdown

  • Total Heated Area:6,491 sq. ft.

  • Lower Level:1,652 sq. ft.

  • 1st Floor:1,868 sq. ft.

  • 2nd Floor:2,455 sq. ft.

  • Sports Court:516 sq. ft.

  • Basement Unfinished:206 sq. ft.

Beds/Baths

  • Bedrooms:5

  • Full Bathrooms:5

  • Half Bathrooms:1

Foundation Type

  • Standard Foundations:Walkout

Exterior Walls

  • Standard Type(s):2x6


Dimensions

  • Width:69' 0"

  • Depth:75' 0"

  • Max Ridge Height:35' 0"

Garage

  • Type:Attached

  • Area:987 sq. ft.

  • Count:3 cars

  • Entry Location:Courtyard

Ceiling Heights

  • Floor / Height:Lower Level / 9' 0"First Floor / 9' 0"Second Floor / 8' 0"

Roof Details

  • Primary Pitch:12 On 12

  • Secondary Pitch:4 On 12

  • Framing Type:Truss


FULL SPECS & FEATURES

If you need more information, pleasefeel free to contact us.
Contact: Mr. Vino Zhang
Cell: +86-135 6063 2003 (Whatsapp and Wechat No.)
Email: vino@jncnhomes.com