


Total Heated Area:3,634 sq. ft.
1st Floor:1,780 sq. ft.
2nd Floor:1,854 sq. ft.
Porch, Front:250 sq. ft.
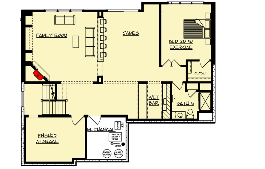
Optional Lower Level:1,582 sq. ft.
Basement Unfinished:145 sq. ft.
Bedrooms:4 or 5
Full Bathrooms:3 or 4
Half Bathrooms:1
Standard Foundations:Walkout
Standard Type(s):2x6
Width:64' 0"
Depth:61' 0"
Max Ridge Height:35' 0"
Type:Attached
Area:1000 sq. ft.
Count:3 cars
Entry Location:Front
Floor / Height:Lower Level / 8' 8"First Floor / 9' 0"Second Floor / 8' 0"
| Room | Type | Height |
|---|---|---|
| Great Room | Second Story | |
| Master Bedroom | Tray | |
| Study | Raised |
Primary Pitch:12 On 12
Framing Type:Truss
If you need more information, pleasefeel free to contact us.
Contact: Mr. Vino Zhang
Cell: +86-135 6063 2003 (Whatsapp and Wechat No.)
Email: vino@jncnhomes.com