Ground floor

1. Wiatrołap5,17 m2
2. Garderoba5,85 m2
3. Łazienka6 m2
4. Spiżarnia4,65 m2
5. Kuchnia14,19 m2
6. Jadalnia23,58 m2
7. Pokój dzienny34,06 m2
8. Pokój15,36 m2
9. Kotłownia + pomieszczenie gospodarcze7,02 m2
10. Korytarz15,84 m2
11. Pom. gospodarcze13,23 m2
12. Garaż dwustanowiskowy41,31 m2
13. Taras(90,60 m2)
Razem186,26 m2
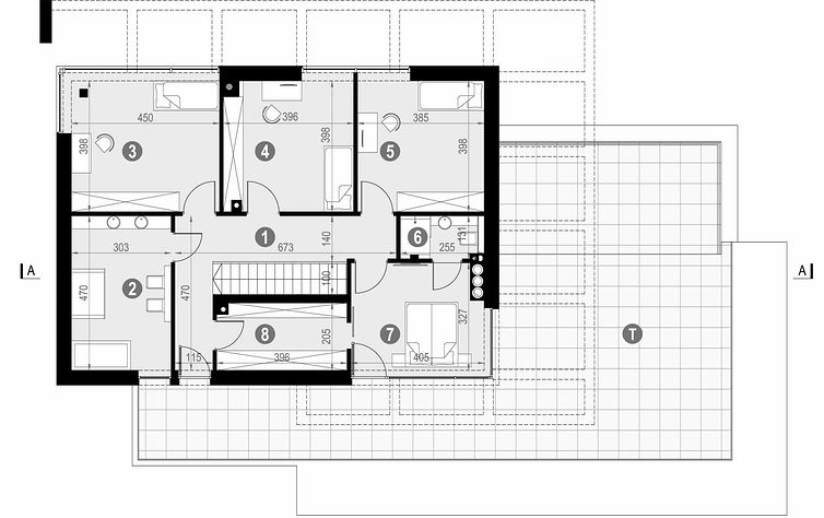
1st floor

1. Korytarz15,37 m2
2. Łazienka14,24 m2
3. Pokój17,84 m2
4. Pokój15,42 m2
5. Pokój15,32 m2
6. Łazienka3,26 m2
7. Pokój12,75 m2
8. Garderoba7,99 m2
9. Taras(91,75 m2)
Razem102,19 m2
If you need more information, pleasefeel free to contact us.
Contact: Mr. Vino Zhang
Cell: +86-135 6063 2003 (Whatsapp and Wechat No.)
Email: vino@jncnhomes.com