Ground floor

1. Wiatrołap7,55 m2
2. Kuchnia17,16 m2
3. Pokój dzienny + jadalnia48,15 m2
4. Korytarz4,84 m2
5. Pokój15,34 m2
6. Łazienka5,68 m2
7. Schody7,57 m2
8. Pom. gospodarcze11,90 m2
9. Garaż dwustanowiskowy42,36 m2
10. Taras(64,85 m2)
Razem160,55 m2
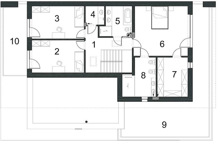
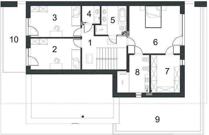
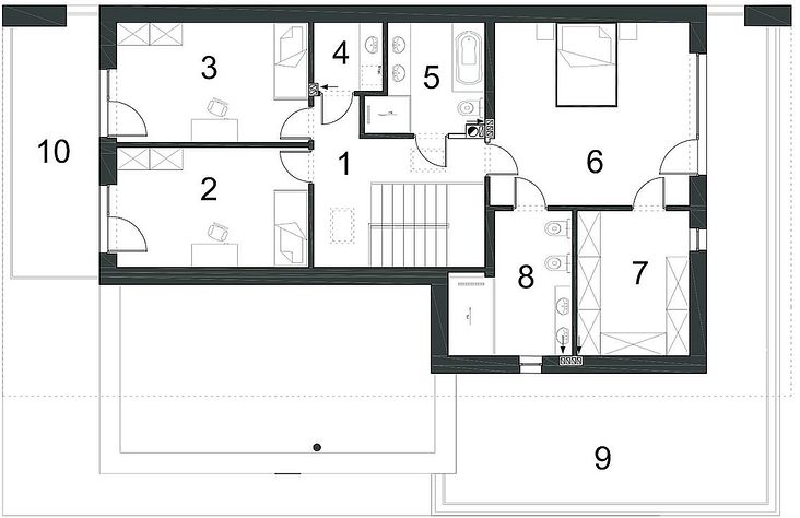
1st floor

1. Korytarz9,86 m2
2. Pokój15,53 m2
3. Pokój15,55 m2
4. Pom. gospodarcze3,18 m2
5. Łazienka7,79 m2
6. Pokój24,29 m2
7. Garderoba11,02 m2
8. Łazienka10,24 m2
9. Taras(41,17 m2)
10. Balkon(14,92 m2)
Razem97,46 m2
If you need more information, pleasefeel free to contact us.
Contact: Mr. Vino Zhang
Cell: +86-135 6063 2003 (Whatsapp and Wechat No.)
Email: vino@jncnhomes.com