Ground floor

1. Wiatrołap6,53 m2
2. Spiżarnia1,73 m2
3. Kuchnia11,57 m2
4. Hall14,29 m2
5. Pokój dzienny + jadalnia38,02 m2
6. Pokój10,20 m2
7. Pokój14,64 m2
8. Garderoba3,32 m2
9. Łazienka3,57 m2
10. Kotłownia5,77 m2
11. Wc2,02 m2
12. Garaż dwustanowiskowy33,63 m2
Razem145,29 m2
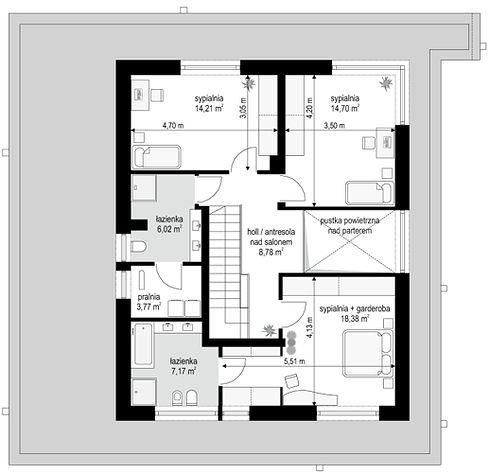
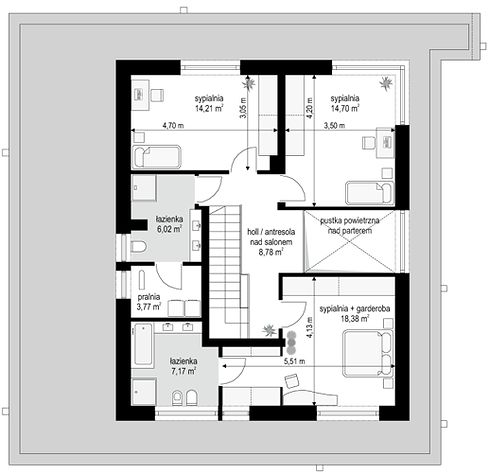
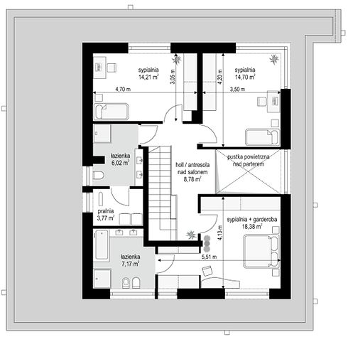
Attic

1. Korytarz8,78 m2
2. Pokój14,70 m2
3. Pokój14,21 m2
4. Łazienka6,02 m2
5. Pom. gospodarcze3,77 m2
6. Łazienka7,17 m2
7. Pokój18,38 m2
Razem73,03 m2
If you need more information, pleasefeel free to contact us.
Contact: Mr. Vino Zhang
Cell: +86-135 6063 2003 (Whatsapp and Wechat No.)
Email: vino@jncnhomes.com