Ground floor

1. Wiatrołap3,37 m2
2. Hall9,36 m2
3. Spiżarnia1,60 m2
4. Kuchnia9,61 m2
5. Pokój dzienny + jadalnia42,09 m2
6. Wc2 m2
7. Pom. gospodarcze6,39 m2
8. Kotłownia6,28 m2
9. Garaż jednostanowiskowy20,02 m2
Razem100,72 m2
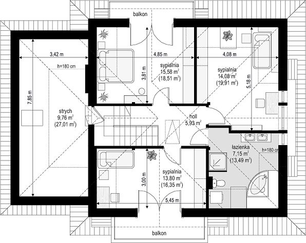
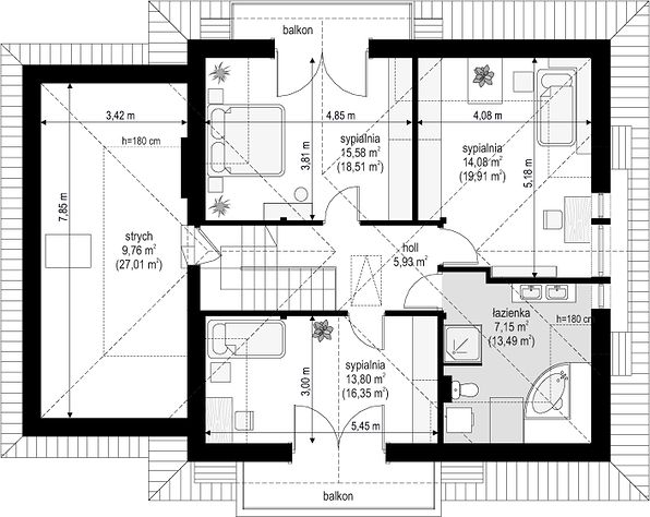
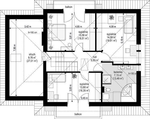
Attic

1. Strych9,76 m2 (27,01 m2)
2. Pokój15,58 m2 (18,51 m2)
3. Hall5,93 m2
4. Pokój13,80 m2 (16,35 m2)
5. Łazienka7,15 m2 (13,49 m2)
Razem52,22 m2 (81,29 m2)
If you need more information, pleasefeel free to contact us.
Contact: Mr. Vino Zhang
Cell: +86-135 6063 2003 (Whatsapp and Wechat No.)
Email: vino@jncnhomes.com