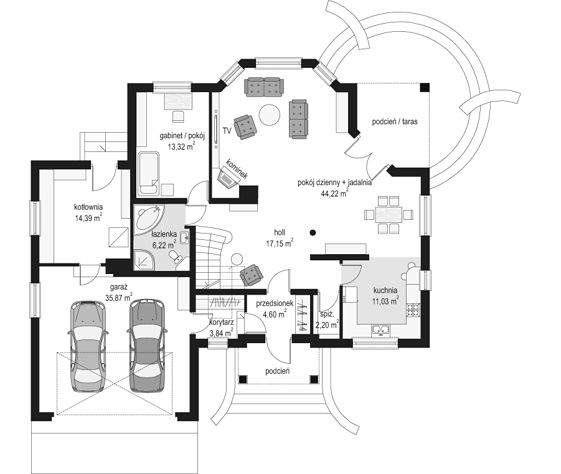
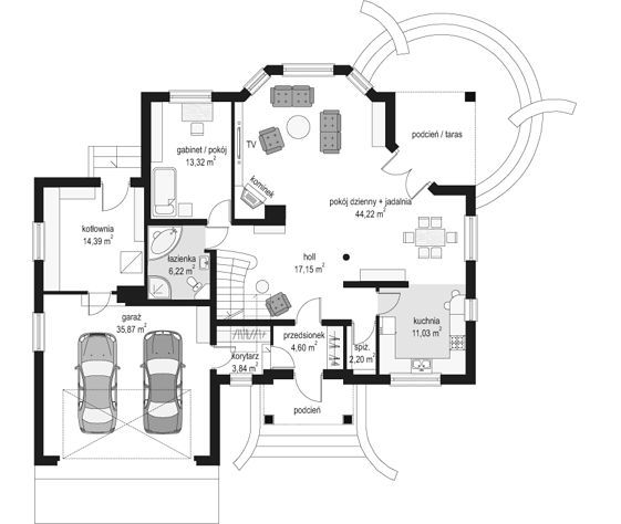
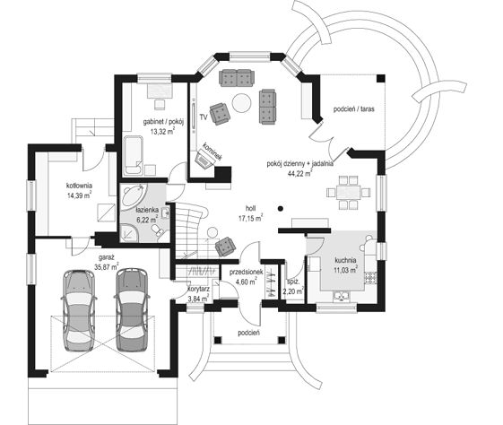
Ground floor

1. Pokój dzienny + jadalnia44,22 m2
2. Hall17,15 m2
3. Kuchnia11,03 m2
4. Magazyn2,20 m2
5. Wiatrołap4,60 m2
6. Korytarz3,84 m2
7. Pokój13,32 m2
8. Łazienka6,22 m2
9. Kotłownia14,39 m2
10. Garaż dwustanowiskowy35,87 m2
Razem152,84 m2
Attic

1. Pokój17,28 m2 (25,40 m2)
2. Pokój14,02 m2 (21,03 m2)
3. Łazienka7,66 m2 (14,42 m2)
4. Hall13,90 m2
5. Pokój17,86 m2 (25,16 m2)
6. Pokój16,80 m2
7. Pom. gospodarcze13,22 m2 (36,60 m2)
Razem100,74 m2 (153,31 m2)
If you need more information, pleasefeel free to contact us.
Contact: Mr. Vino Zhang
Cell: +86-135 6063 2003 (Whatsapp and Wechat No.)
Email: vino@jncnhomes.com