Ground floor

1. Wiatrołap + garderoba6,81 m2
2. Hall5,67 m2
3. Kuchnia9,29 m2
4. Spiżarnia1,28 m2
5. Pokój dzienny + jadalnia29,22 m2
6. Łazienka3,05 m2
7. Pom. gospodarcze1,37 m2
8. Pokój12,98 m2
9. Pom. gospodarcze6,47 m2
10. Garaż dwustanowiskowy34,91 m2
Razem111,05 m2
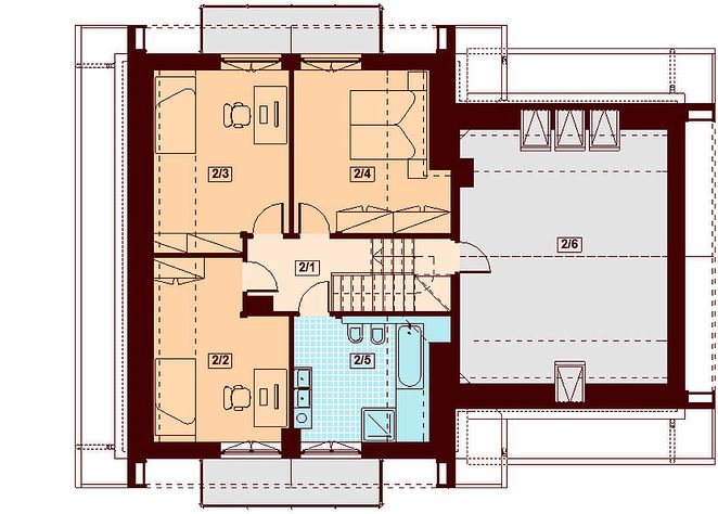
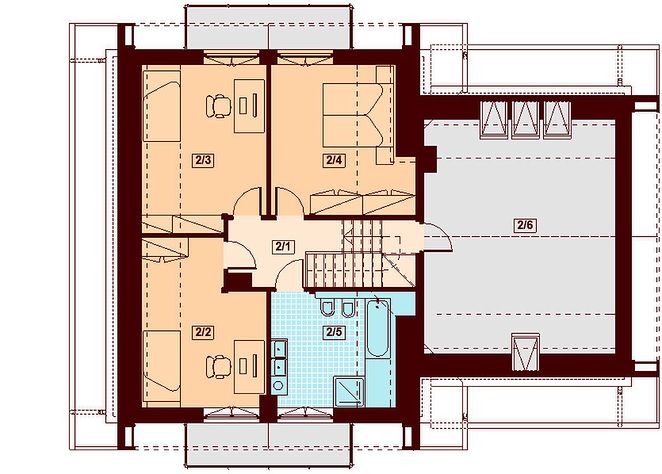
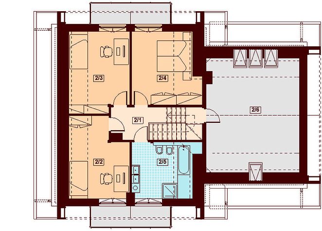
Attic

1. Korytarz + schody5,06 m2
2. Pokój12,21 m2 (17,93 m2)
3. Pokój13,37 m2 (19,02 m2)
4. Pokój13,54 m2 (17,58 m2)
5. Łazienka9,77 m2 (13,48 m2)
6. Strych30,32 m2 (42,81 m2)
Razem84,27 m2 (115,88 m2)
If you need more information, pleasefeel free to contact us.
Contact: Mr. Vino Zhang
Cell: +86-135 6063 2003 (Whatsapp and Wechat No.)
Email: vino@jncnhomes.com