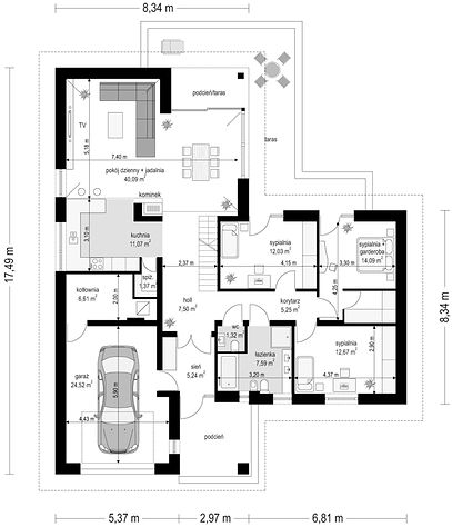
Ground floor

1. Wiatrołap5,24 m2
2. Wc1,32 m2
3. Łazienka7,59 m2
4. Pokój12,67 m2
5. Pokój14,09 m2
6. Pokój12,03 m2
7. Korytarz5,25 m2
8. Korytarz7,50 m2
9. Pokój dzienny + jadalnia40,09 m2
10. Kuchnia11,07 m2
11. Spiżarnia1,37 m2
12. Kotłownia6,61 m2
13. Garaż jednostanowiskowy24,52 m2
Razem149,35 m2
Attic

1. Strych28,36 m2 (130,67 m2)
Razem28,36 m2 (130,67 m2)
If you need more information, pleasefeel free to contact us.
Contact: Mr. Vino Zhang
Cell: +86-135 6063 2003 (Whatsapp and Wechat No.)
Email: vino@jncnhomes.com