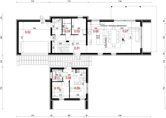
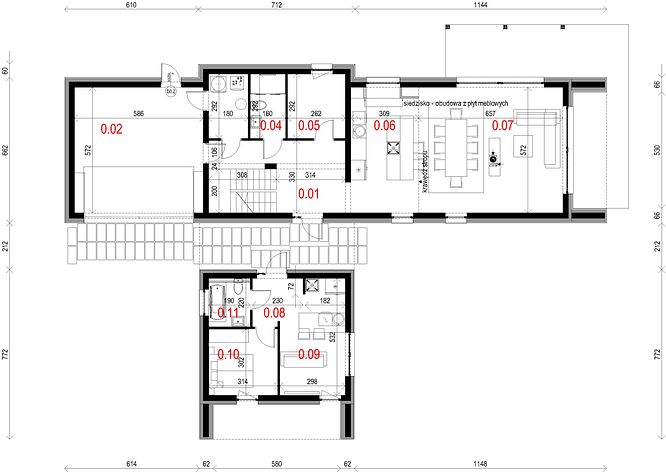
Ground floor

1. Hall20,24 m2
2. Garaż dwustanowiskowy33,17 m2
3. Kotłownia5,11 m2
4. Łazienka4,57 m2
5. Pokój7,48 m2
6. Kuchnia17,41 m2
7. Pokój dzienny + jadalnia37,21 m2
8. Wiatrołap3,93 m2
9. Pokój + kuchnia14,07 m2
10. Pokój9,30 m2
11. Łazienka4,06 m2
Razem156,55 m2
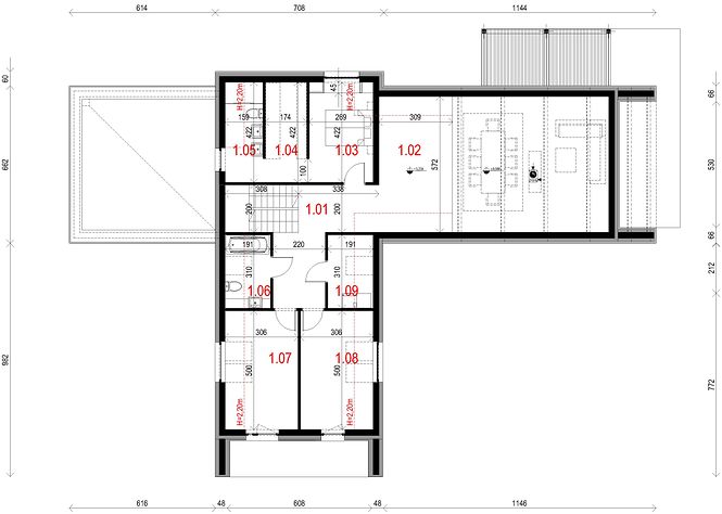
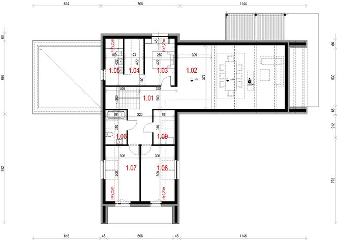
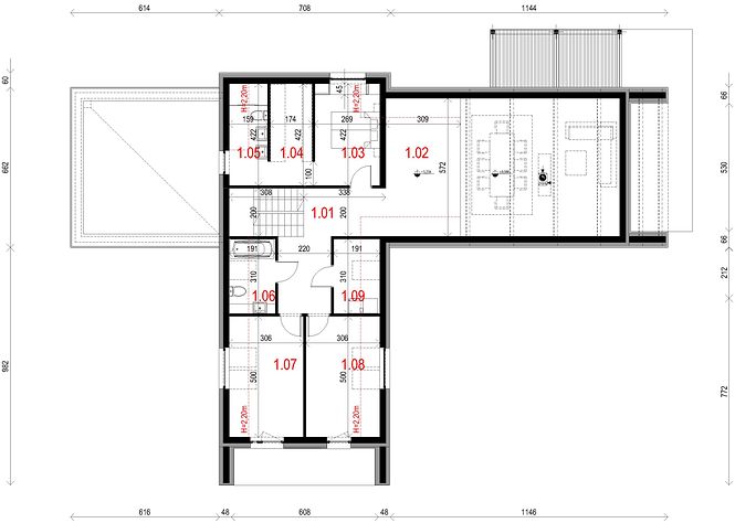
Attic

1. Korytarz12,73 m2
2. Antresola15,01 m2
3. Pokój10,72 m2
4. Garderoba7,16 m2
5. Łazienka5,47 m2
6. Łazienka4,57 m2
7. Pokój13,11 m2
8. Pokój13,11 m2
9. Pom. gospodarcze4,57 m2
Razem86,45 m2
If you need more information, pleasefeel free to contact us.
Contact: Mr. Vino Zhang
Cell: +86-135 6063 2003 (Whatsapp and Wechat No.)
Email: vino@jncnhomes.com