Ground floor

1. Wiatrołap6,27 m2
2. Kotłownia17,02 m2
3. Pokój12,94 m2
4. Pokój dzienny24,30 m2
5. Kuchnia + jadalnia10,15 m2
6. Łazienka4,47 m2
7. Schody
8. Garaż jednostanowiskowy24,38 m2
9. Pom. gospodarcze5,57 m2
Razem105,10 m2
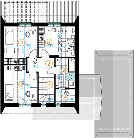
Attic

1. Schody
2. Korytarz6,34 m2
3. Pokój15,91 m2
4. Pokój15,91 m2
5. Pokój14,82 m2
6. Łazienka8,03 m2
7. Pom. gospodarcze3,64 m2
Razem64,65 m2
If you need more information, pleasefeel free to contact us.
Contact: Mr. Vino Zhang
Cell: +86-135 6063 2003 (Whatsapp and Wechat No.)
Email: vino@jncnhomes.com