Ground floor

1. Wiatrołap8,95 m2
2. Hall4,68 m2
3. Łazienka3,56 m2
4. Pokój dzienny18,60 m2
5. Kuchnia + jadalnia11,16 m2
6. Spiżarnia1,12 m2
7. Pom. gospodarcze2,39 m2
8. Kotłownia5,28 m2
9. Garaż dwustanowiskowy32,80 m2
Razem88,54 m2
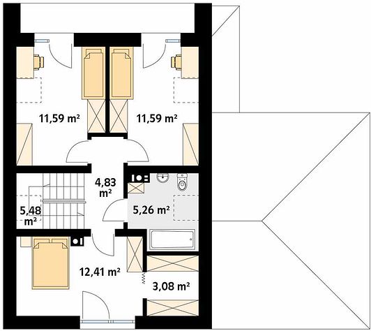
Attic

1. Hall4,83 m2
2. Pokój11,59 m2
3. Pokój11,59 m2
4. Pokój12,41 m2
5. Garderoba3,08 m2
6. Łazienka5,26 m2
7. Schody5,48 m2
Razem54,24 m2
If you need more information, pleasefeel free to contact us.
Contact: Mr. Vino Zhang
Cell: +86-135 6063 2003 (Whatsapp and Wechat No.)
Email: vino@jncnhomes.com