Modern houses
LK&987
PLAN DESCRIPTION
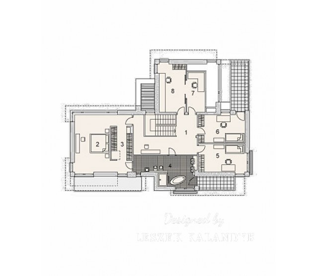
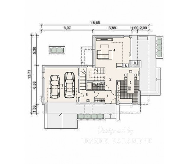
FLOOR PLANS

Basement

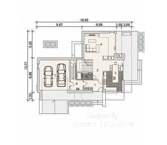
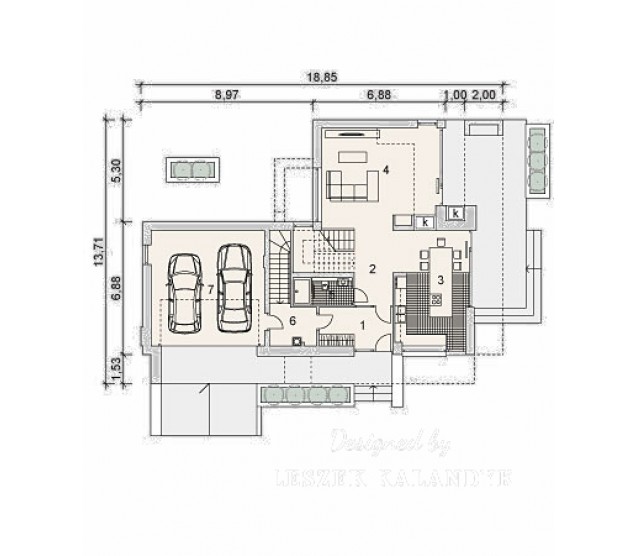
Ground floor

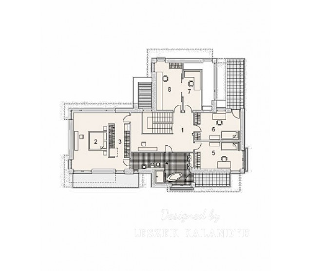
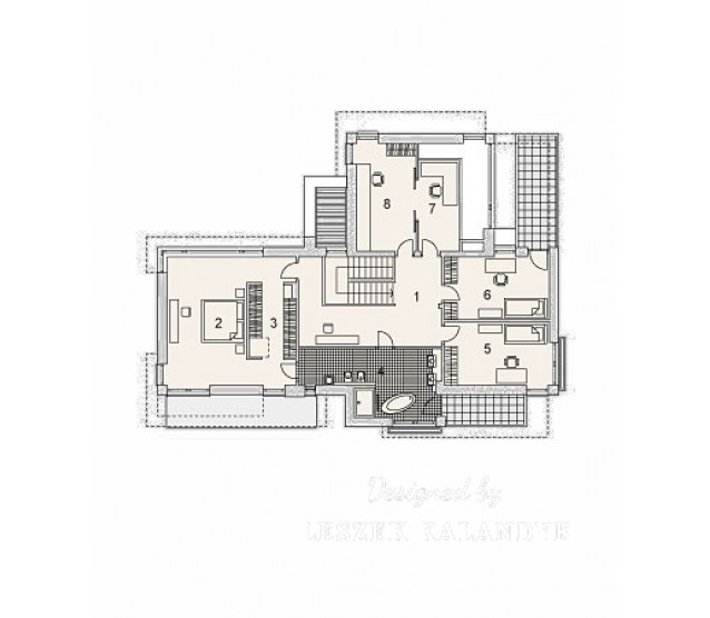
Floor


FULL SPECS & FEATURES
1. Usable area203,92 m²
2. Basement area84,19 m²
3. Area garage35,37 m²
4. Total surface458,18 m²
5. Building area190,09 m²
6. Net volume897,87 m³
7. Gross volume1529,66 m³
8. Energy for heating15,82 kWh/m²*year
9. Building height7,21 m
10. Roof angle1,1 °
11. Roof area142,86 m²
12. Сeiling height2,55/2,60 m
13. Minimum plot size21,91 x 26,85 m


If you need more information, pleasefeel free to contact us.
Contact: Mr. Vino Zhang
Cell: +86-135 6063 2003 (Whatsapp and Wechat No.)
Email: vino@jncnhomes.com