Modern houses
LK&1207
PLAN DESCRIPTION
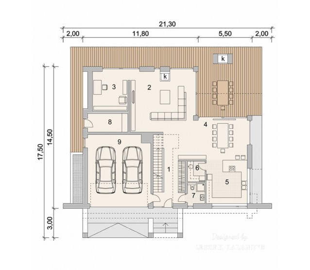
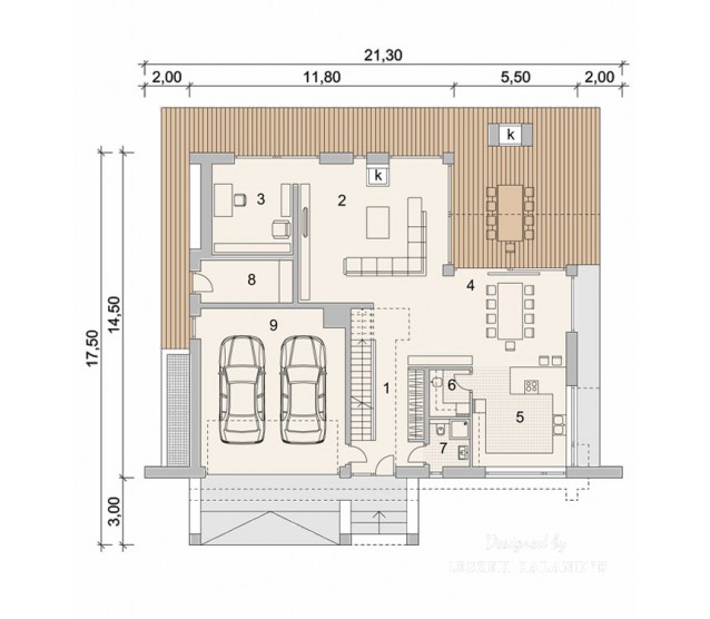
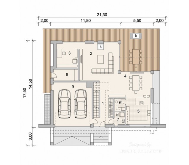
FLOOR PLANS

Basement

Ground floor

Floor


FULL SPECS & FEATURES
1. Usable area282,6 m²
2. Basement area56,8 m²
3. Area garage44,63 m²
4. Additional area7,79 m²
5. Total surface678,62 m²
6. Building area232,4 m²
7. Net volume1077,92 m³
8. Building height10,7 m
9. Roof angle30 °
10. Roof area186,3 m²
11. Сeiling height2,90 / 2,70 m
12. Minimum plot size24,5 x 25,3 m


If you need more information, pleasefeel free to contact us.
Contact: Mr. Vino Zhang
Cell: +86-135 6063 2003 (Whatsapp and Wechat No.)
Email: vino@jncnhomes.com