Modern houses
LK&1314
PLAN DESCRIPTION
FLOOR PLANS

Basement

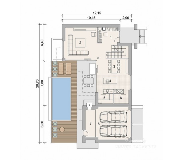
Ground floor

Floor


FULL SPECS & FEATURES
1. Usable area171,26 m²
2. Area garage32,69 m²
3. Additional area8,31 m²
4. Total surface285,95 m²
5. Building area191,77 m²
6. Net volume875,79 m³
7. Gross volume1419,45 m³
8. Building height7,8 m
9. Сeiling height3,00 m; 2,70 m


If you need more information, pleasefeel free to contact us.
Contact: Mr. Vino Zhang
Cell: +86-135 6063 2003 (Whatsapp and Wechat No.)
Email: vino@jncnhomes.com