Modern houses
LK&1417
PLAN DESCRIPTION
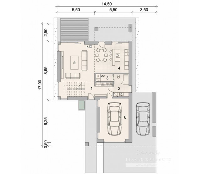
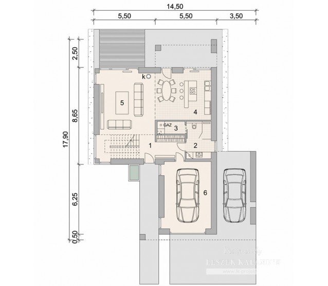
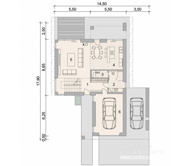
FLOOR PLANS

Ground floor

Floor


FULL SPECS & FEATURES
1. Usable area131,74 m²
2. Area garage25,2 m²
3. Total surface280,19 m²
4. Building area131,43 m²
5. Net volume778,82 m³
6. Gross volume1101,03 m³
7. Building height8,69 m
8. Attic wall height0,3 m
9. Roof angle30 °
10. Roof area108,83 m²
11. Сeiling height2,88 m; 2,90 m
12. Minimum plot size24,4 x 21,5 m


If you need more information, pleasefeel free to contact us.
Contact: Mr. Vino Zhang
Cell: +86-135 6063 2003 (Whatsapp and Wechat No.)
Email: vino@jncnhomes.com