Modern houses
LK&1618
PLAN DESCRIPTION
FLOOR PLANS

Basement

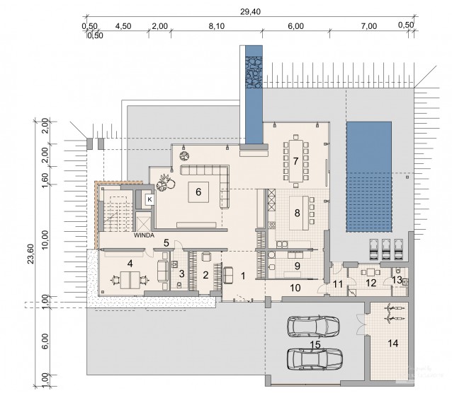
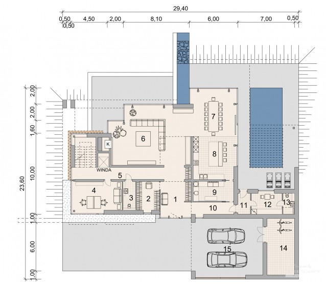
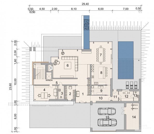
Ground floor

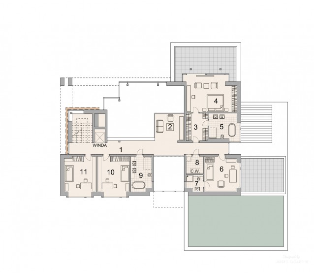
Floor

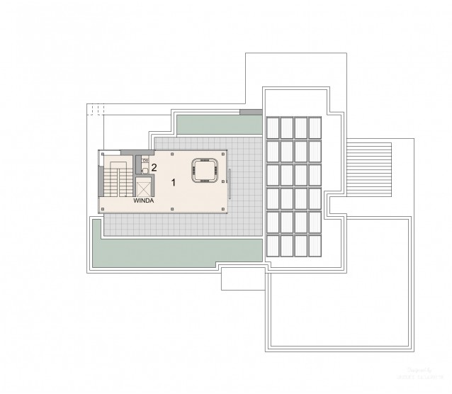
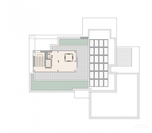
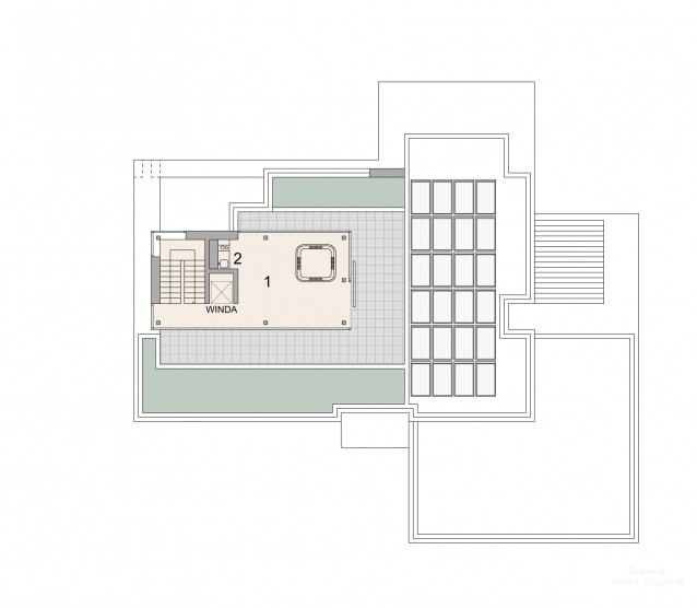
Floor 2


FULL SPECS & FEATURES

If you need more information, pleasefeel free to contact us.
Contact: Mr. Vino Zhang
Cell: +86-135 6063 2003 (Whatsapp and Wechat No.)
Email: vino@jncnhomes.com