Traditional houses
LK&215
PLAN DESCRIPTION
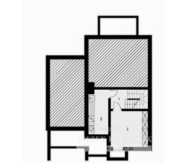
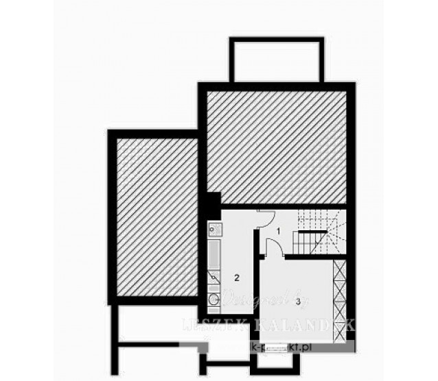
FLOOR PLANS

Basement

Ground floor

Attic


FULL SPECS & FEATURES
1. Usable area124,05 m²
2. Basement area27,28 m²
3. Area garage25,9 m²
4. Total surface227,34 m²
5. Building area115,19 m²
6. Net volume524,99 m³
7. Gross volume714,17 m³
8. Energy for heating11,49 kWh/m²*year
9. Building height8,52 m
10. Attic wall height1,39 m
11. Roof angle45 °
12. Roof area209,02 m²
13. Сeiling height2,2 m
14. Minimum plot size19,1 x 20 m


If you need more information, pleasefeel free to contact us.
Contact: Mr. Vino Zhang
Cell: +86-135 6063 2003 (Whatsapp and Wechat No.)
Email: vino@jncnhomes.com