Traditional houses
LK&934
PLAN DESCRIPTION
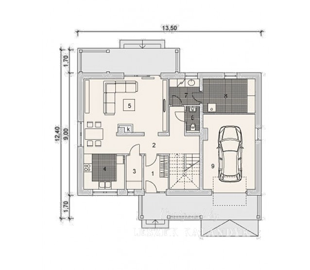
FLOOR PLANS

Ground floor

Attic


FULL SPECS & FEATURES
1. Usable area125,73 m²
2. Area garage20,73 m²
3. Additional area10,54 m²
4. Total surface279,5 m²
5. Building area158,27 m²
6. Net volume452,5 m³
7. Gross volume901,5 m³
8. Building height8,2 m
9. Attic wall height1,02 m
10. Roof angle38 °
11. Roof area221,82 m²
12. Сeiling height2,65 m
13. Minimum plot size21,5 x 19,72 m


If you need more information, pleasefeel free to contact us.
Contact: Mr. Vino Zhang
Cell: +86-135 6063 2003 (Whatsapp and Wechat No.)
Email: vino@jncnhomes.com