Traditional houses
LK&1297
PLAN DESCRIPTION
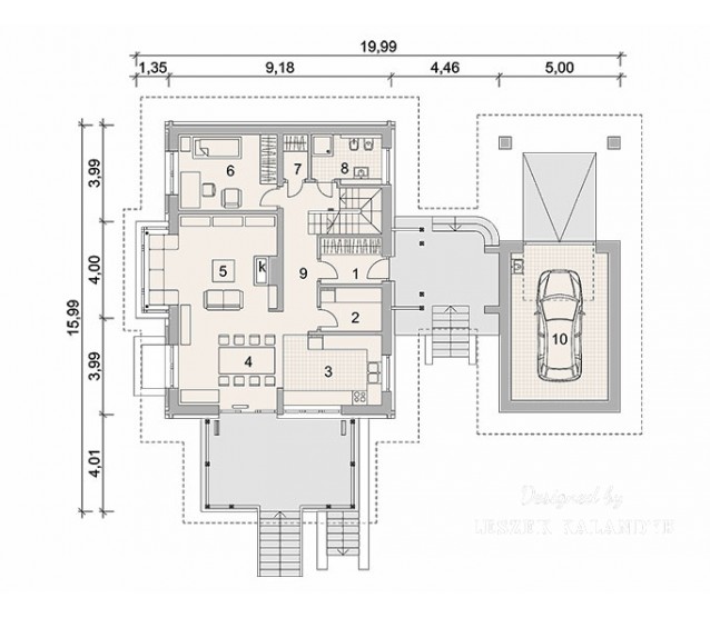
FLOOR PLANS

Basement

Ground floor

Attic


FULL SPECS & FEATURES
1. Usable area150,87 m²
2. Basement area69,48 m²
3. Additional area24,4 m²
4. Total surface264 m²
5. Building area157 m²
6. Net volume722,1 m³
7. Gross volume1586,95 m³
8. Building height8,8 m
9. Attic wall height0,9 m
10. Roof angle42 °
11. Roof area418,01 m²
12. Сeiling height2,48m, 2,62m, 3,00m m
13. Minimum plot size24,19 x 26,99 m


If you need more information, pleasefeel free to contact us.
Contact: Mr. Vino Zhang
Cell: +86-135 6063 2003 (Whatsapp and Wechat No.)
Email: vino@jncnhomes.com