Traditional houses
LK&1304
PLAN DESCRIPTION
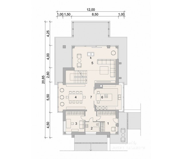
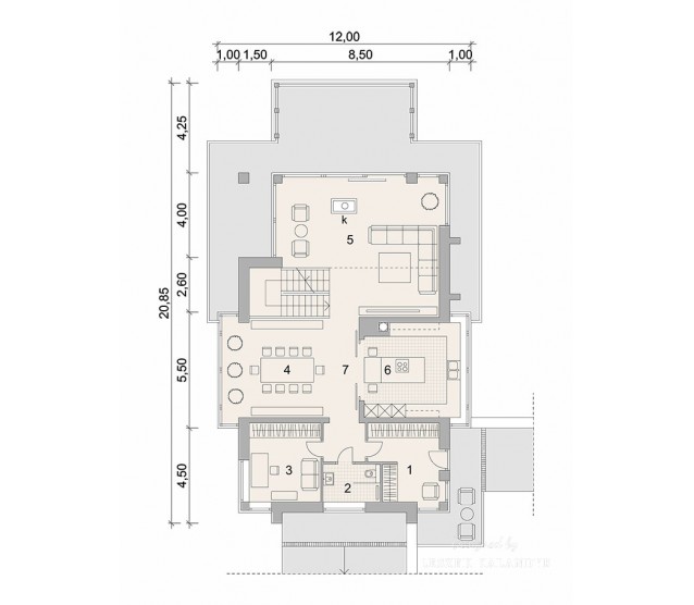
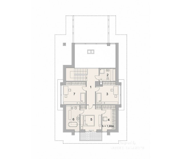
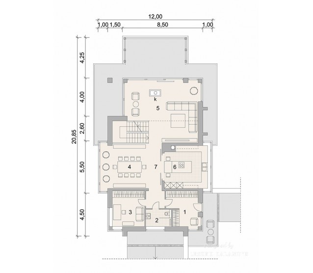
FLOOR PLANS

Basement

Ground floor

Attic


FULL SPECS & FEATURES
1. Usable area269,57 m²
2. Additional area54 m²
3. Total surface536,05 m²
4. Building area200,8 m²
5. Net volume1100,7 m³
6. Gross volume1552,3 m³
7. Energy for heating16,95 kWh/m²*year
8. Building height9,25 m
9. Attic wall height1,11 m
10. Roof angle43 °
11. Roof area384 m²
12. Сeiling height2,76 m , 3,32 m , 6,42 m
13. Minimum plot size20 x 26,85 m


If you need more information, pleasefeel free to contact us.
Contact: Mr. Vino Zhang
Cell: +86-135 6063 2003 (Whatsapp and Wechat No.)
Email: vino@jncnhomes.com