Traditional houses
LK&1499
PLAN DESCRIPTION
FLOOR PLANS

Basement

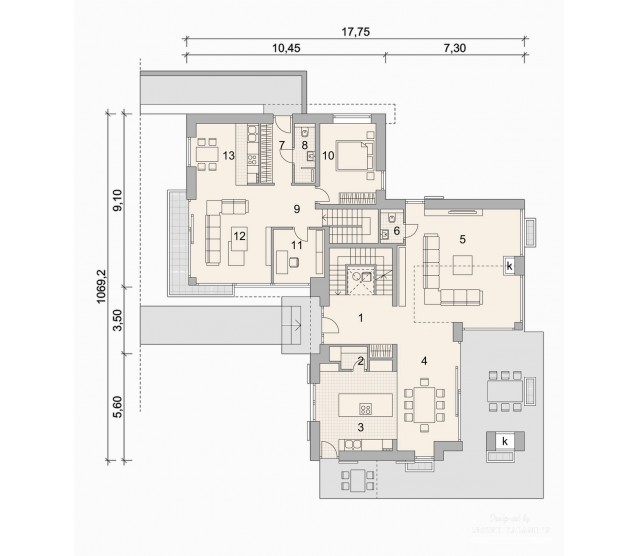
Ground floor

Floor


FULL SPECS & FEATURES
1. Usable area221,34 m²
2. Basement area157,31 m²
3. Total surface514,08 m²
4. Building area208,52 m²
5. Net volume1170,15 m³
6. Gross volume1469,58 m³
7. Building height10,48 m
8. Roof angle30 °
9. Сeiling height2,7 m
10. Minimum plot size26,2 x 25,75 m


If you need more information, pleasefeel free to contact us.
Contact: Mr. Vino Zhang
Cell: +86-135 6063 2003 (Whatsapp and Wechat No.)
Email: vino@jncnhomes.com