Traditional houses
LK&908
PLAN DESCRIPTION
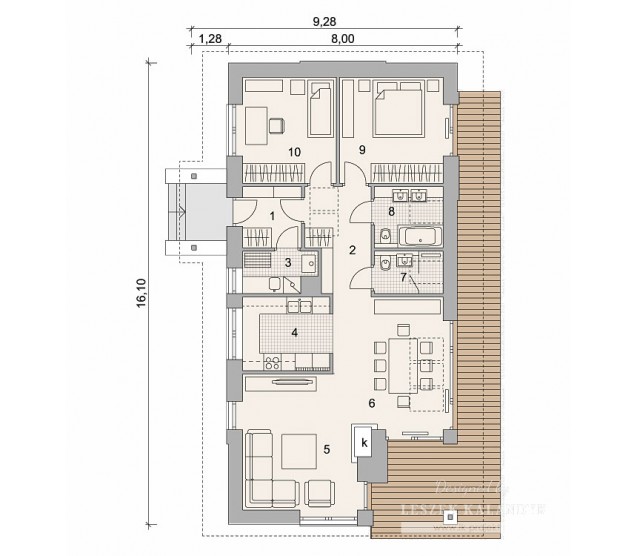
FLOOR PLANS

Ground floor


FULL SPECS & FEATURES
1. Usable area93,56 m²
2. Total surface121 m²
3. Building area160,14 m²
4. Net volume412,07 m³
5. Gross volume671,7 m³
6. Energy for heating7,46 kWh/m²*year
7. Building height6,47 m
8. Roof angle35 °
9. Roof area206,5 m²
10. Сeiling height5,43 m
11. Minimum plot size16,34 x 23,22 m


If you need more information, pleasefeel free to contact us.
Contact: Mr. Vino Zhang
Cell: +86-135 6063 2003 (Whatsapp and Wechat No.)
Email: vino@jncnhomes.com