Barnhouses
LK&1477
PLAN DESCRIPTION
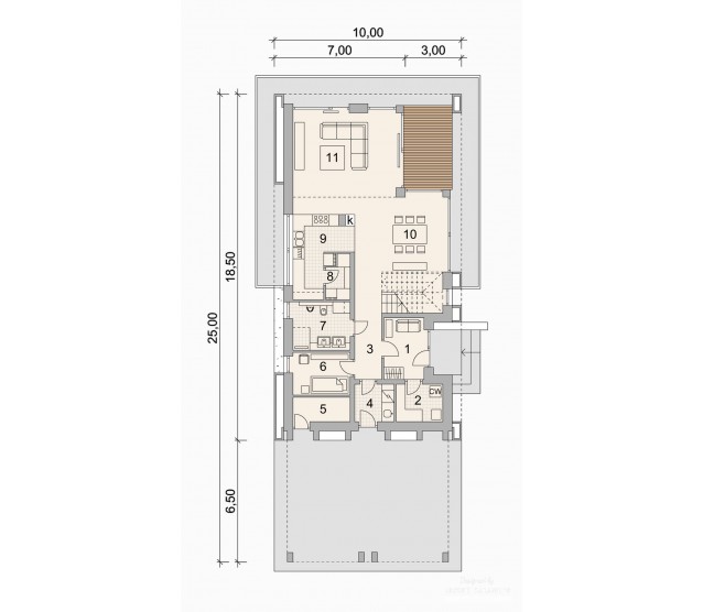
FLOOR PLANS

Ground floor

Attic


FULL SPECS & FEATURES
1. Usable area166,17 m²
2. Total surface272,52 m²
3. Building area155,26 m²
4. Net volume664,42 m³
5. Gross volume771,82 m³
6. Building height9 m
7. Attic wall height1 m
8. Roof angle41 °
9. Сeiling height2,70 m; 3,00 m
10. Minimum plot size31,5 x 17 m


If you need more information, pleasefeel free to contact us.
Contact: Mr. Vino Zhang
Cell: +86-135 6063 2003 (Whatsapp and Wechat No.)
Email: vino@jncnhomes.com